Unidades de Confeção EB 23 Inês de Castro, EB 23 Martim de Freitas e ES D. Dinis
1. IDENTIFICAÇÃO
364 – Unidades de Confeção nas Escolas EB 23 Inês de Castro, EB 23 Martim de Freitas e ES D. Dinis

2. LOCALIZAÇÃO

Escola Básica de 2.º e 3º Ciclo Inês de Castro
Rua Vinha de Moura, 3040-226 Coimbra, Localização: 40°11’27.7″N 8°27’29.0″W

Escola Básica de 2.º e 3.º Ciclo Martim de Freitas
Rua André Gouveia, 3000-029, Localização: 40°13’02.1″N 8°24’52.2″W

Escola Secundária D. Dinis
Rua Adriano Lucas, 3020-264 Coimbra, Localização: 40°14’28.8″N 8°25’59.4″W
3. DESCRIÇÃO GERAL ADMINISTRATIVA
Escola Básica de 2.º e 3º Ciclo Inês de Castro, prédio urbano, pertencente ao Município de Coimbra
Escola Básica de 2.º e 3.º Ciclo Martim de Freitas, prédio urbano, pertencente ao Município de Coimbra
Escola Secundária D. Dinis, prédio urbano, pertencente ao Município de Coimbra
4. PROJETO
Divisão de Edifícios e Equipamentos Municipais em articulação com a Divisão de
Projetos e Edifícios Municipais
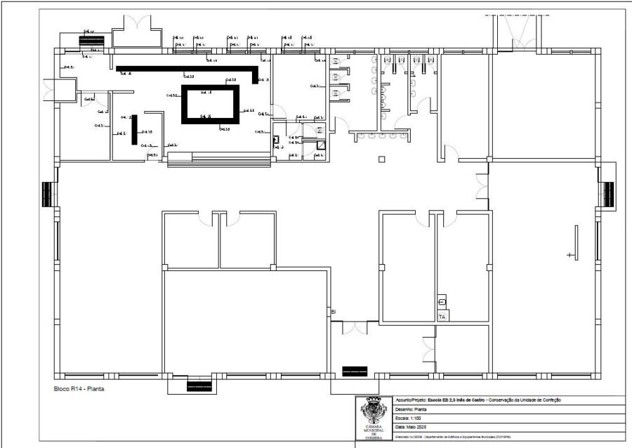
5. DESCRIÇÃO GERAL DO EDIFÍCIO

6. MEMÓRIA DESCRITIVA
Pretende-se executar trabalhos de conservação e manutenção nas Unidades de Confeção, no sentido de melhorar a qualidade dos espaços e o seu funcionamento.
A manutenção e conservação adequadas dos espaços de confeção e de refeição são essenciais para garantir a salubridade dos ambientes, salvaguardando a saúde e o bem-estar dos alunos. Assim, a presente proposta de intervenção visa colmatar as principais não conformidades identificadas nas unidades de confeção da EB 2,3 Inês de Castro, EB 2,3 Martim de Freitas e ES D. Dinis, assegurando as condições de operacionalidade destas unidades:
• Limpeza integral de paredes e tetos;
• Instalação de eletrocutores de insetos/inseto-caçadores;
• Desentupimento da Rede de esgotos entupida – Desentupir;
• Remoção de grelhas de pavimento e respetivos aros metálicos existentes com largura de 35cm e reaplicação de grelhas de PVC;
• Instalação de sifões;
• Reparação pontual de pavimentos cerâmicos;
• Substituição de torneiras e sifões;
• Substituição de luminárias danificadas
• Instalação de redes mosquiteiras amovíveis
• Reparação de estores
• Substituição das portas (danificadas)
• Pintura de Paredes e Tetos
• Verificação de estanqueidade das coberturas

7. CONCURSO PARA A REALIZAÇÃO DA OBRA

8. EXECUÇÃO DOS TRABALHOS
A fiscalização e a coordenação de segurança da obra serão asseguradas pela Divisão de Edifícios e Equipamentos Municipais.
))