Reabilitação e requalificação da Escola Básica 2, 3 Eugénio de Castro

IDENTIFICAÇÃO
Reabilitação e requalificação da Escola Básica 2, 3 Eugénio de Castro
LOCALIZAÇÃO
Rua Almirante Gago Coutinho, 3030-326 Coimbra | Freguesia de Santo António dos Olivais

DESCRIÇÃO GERAL ADMINISTRATIVA
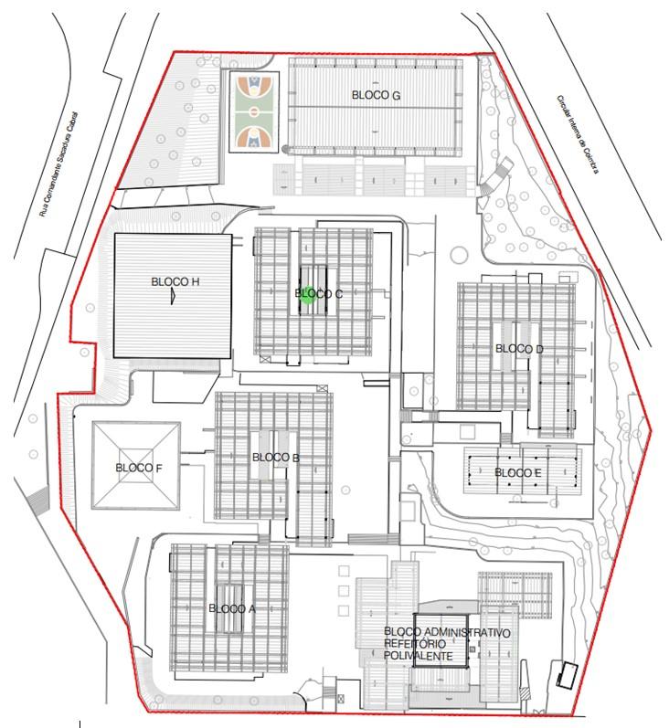
A Escola Básica Eugénio de Castro confina a norte com a rotunda da Avenida António Portugal, a sul com a Rua Almirante Gago Coutinho, a nascente com a Rua Bento de Jesus Caraça e a poente com a Rua Comandante Sacadura Cabral.
Foi fundada em 1972 para acolher o ensino preparatório, que até então não tinha um espaço próprio para lecionar as aulas. Atualmente, apresenta uma capacidade para 1008 alunos distribuídos por 36 turmas.
PROJETO
Projeto de Arquitetura: Divisão de Projetos de Edifícios e Equipamentos Municipais
DESCRIÇÃO GERAL DO EDIFÍCIO

MEMÓRIA DESCRITIVA
A Escola Eugénio de Castro é de uma tipologia conhecida como Projeto Brandão, tendo como principais características amplos envidraçados, parapeitos baixos, betão à vista e panos de parede de tijolo burro. No projeto de reabilitação e requalificação, pretende-se manter esta imagem tão marcante nesta escola, sendo que apesar de o betão ter sido pintado várias vezes ao longo dos anos, será novamente pintado na cor de betão natural. De igual forma, o tijolo envelhecido e com manchas será pintado na cor de tijolo.
Atualmente, a Escola é constituída por oito blocos: Bloco Administrativo/Polivalente (dois pisos), Bloco A (1 piso), Bloco B (1 piso), Bloco C (1 piso), Bloco D (1 piso), Bloco E (1 piso), Bloco F (2 pisos), Pavilhão Gimnodesportivo (1 piso + galeria). Para interligar os diversos blocos existem passagens cobertas em estrutura metálica e cobertura em chapa de aço pré lacada.
De momento, a escola encontra-se bastante degradada e sem manutenção adequada para uma utilização intensiva que se pressupões de um ambiente escolar do ensino básico. O desconforto térmico é um dos principais problemas, sendo que não existe qualquer tipo de isolamento, implicando uma perda de energia considerável durante as estações mais frias e uma excessiva acumulação de calor nas estações quentes.
Para corrigir este problema, propõe-se que as paredes exteriores sejam revestidas com isolamento térmico pelo interior, à exceção do Bloco F, cujo isolamento será feito pelo exterior. Além disso, todas as caixilharias serão substituídas por outras com vidro duplo e corte térmico e os pátios interiores dos Blocos passarão a ser protegidos com uma estrutura metálica e chapa de aço, com vidro laminado na zona central e ventilação assegurada nas laterais por lamelas de vidro orientáveis.
Funcionalmente, as alterações mais relevantes são destinar as salas dos blocos exclusivamente para o leccionamento de aulas, deslocar a Biblioteca para o Bloco Administrativo/ Polivalente, desenhar o Auditório no Bloco E, contíguo à Sala de Música, e ampliar o Refeitório com um espaço semiexterior.
Em termos estéticos, propõe-se a substituição de todas as portas de entrada nas salas dos blocos por portas lisas lacadas na cor laranja vivo, ritmando e pontuando os alçados com a presença de uma cor forte.
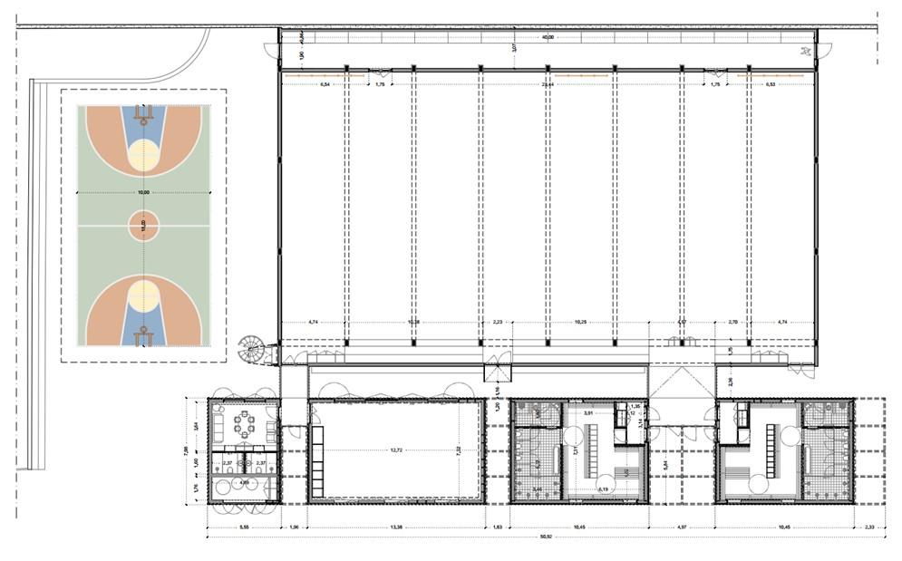
Relativamente ao Pavilhão Gimnodesportivo, propõe-se a demolição dos atuais balneários e desenham-se quatro blocos independentes, sendo que os dois primeiros mais próximos do limite nascente da escola são afetos aos balneários dos alunos (femininos e masculinos), o bloco de maior dimensão é reservado para a Sala de Dança e Ginástica e o bloco mais a poente é destinado à sala de professores e zona técnica.
A nível de materialidade, adota-se a ideia de leveza para a construção dos novos blocos, sendo estes compostos por uma estrutura metálica em Light Steel Framing, revestida com painéis de chapa de aço perfilada pré lacada. As entradas de luz nos espaços interiores são definidas pela transparência pontual de chapas perfuradas.
Adjacente à estrema norte do recinto escolar, propõe-se ainda um novo volume, em toda a extensão do alçado tardoz do pavilhão, com a função de arrumos/armazém do material desportivo.
A poente do Pavilhão Gimnodesportivo, é ainda desenhado um pequeno campo de basquetebol com dimensões de 18×10 metros, em piso amortecedor contínuo de borracha, com uma nova zona de bancadas.
A cobertura do campo desportivo exterior existente, situado junto ao limite poente da escola, é proposta numa estrutura em asnas metálicas, com uma única pendente, revestida com chapa de aço pré lacada. O pavimento será refeito em betão poroso e pintado de acordo com as modalidades ali praticadas.






CONCURSO PÚBLICO PARA A REALIZAÇÃO DA OBRA

EXECUÇÃO DOS TRABALHOS
NA
Coimbra, janeiro 2025
))