Reabilitação do Imóvel Municipal sito na Rua Direita e Rua Nova
IDENTIFICAÇÃO
Reabilitação do Imóvel Municipal sito na Rua Direita 80-82-82A e Rua Nova 44-46

LOCALIZAÇÃO
Rua Direita 80-82-82A e Rua Nova 44-46, União das Freguesias de Coimbra, Município de Coimbra.
PROJETO
Projeto de Arquitetura: Divisão de Projetos de Edifícios e Equipamentos Municipais
Projecto de Especialidades: Divisão de Projetos de Edifícios e Equipamentos Municipais, Divisão de Edifícios Habitacionais e PROJEDOMUS
MEMÓRIA DESCRITIVA
A presente memória diz respeito ao projeto de reabilitação dos imóveis localizados na Rua Direita 80-82-82-A e Rua Nova 44-46, que são um conjunto de imóveis de gaveto, entre a Rua Direita e Rua Nova, na zona da baixa de Coimbra. O imóvel da Rua Direita 80-82-82-A é composto por 4 pisos, rés-do-chão, 1º andar, 2° e 3° andares, enquanto que o imóvel da Rua Direita 80-82 é composto por rés-do-chão, 1° andar, 2° e águas furtadas.
Os imóveis apresentam um mau estado de conservação, com graves deficiências generalizadas, nomeadamente no revestimento da cobertura, ausência de isolamento térmico, caleiras e tubos de queda danificados, paredes interiores em más condições de salubridade, estrutura de pavimentos desnivelados, destacamento de rebocos, casas de banho inadequadas, vãos danificados, vidros partidos, destacamento dos rebocos exteriores e utilização de rebocos inadequados.

Imagem n.º 1 – Planta de implantação
De um modo geral, os imóveis habitacionais existentes na área, apresentam um considerável estado de degradação, levando consequentemente à desertificação e posterior ruína dos espaços habitacionais. Com o intuito de reverter esta situação, a proposta de intervenção incide prioritariamente na conservação e requalificação do imóvel, com a substituição e reforço do vigamento em madeira por material idêntico, pavimentos em madeira, rebocos exteriores à base de cal e recuperação e substituição dos vãos com o mesmo desenho e características.
No piso referente às águas furtadas, a opção de intervenção consiste na requalificação desse espaço com a eliminação dos elementos acrescidos e a introdução de mansardas de modo a criar melhores condições na habitabilidade, iluminação e ventilação do espaço.
![]() |
![]() |
Imagem n.º 2 – Alçado Sul e Nascente
![]() |
![]() |
Imagem n.º 3 – Alçado Norte e Poente
Na reabilitação, um dos princípios base foi o de dotar o imóvel de um maior conforto por forma a serem conseguidas as condições mínimas de habitabilidade. Assim, e condicionados pelas dimensões interiores, diferenças de cotas interiores entre diferentes imóveis, a reorganização do espaço interior dos imóveis desenvolveu-se em torno da estrutura de acesso, com entrada pelo imóvel situado na Rua Direita 82-A, com tipologias compreendidas entre o TO e T2, com acesso independente pela Rua Nova 44-46, desenvolve-se uma tipologia TI duplex.
Nos andares superiores. com entrada pelo n° 82-A, desenvolvem-se as habitações. A escada de acesso foi integralmente reelaborada e subdividida em dois elementos independentes para permitir um acesso com maior fluidez as diversas tipologias. Assim, no primeiro andar desenvolve-se duas unidades de ocupação de tipologia TO e uma tipologia T2 Duplex (confinante com a rua Nova), enquanto no segundo andar desenvolvem-se uma unidade de ocupação de tipologia T1 e no sótão uma unidade de ocupação de tipologia T2.
![]() |
![]() |
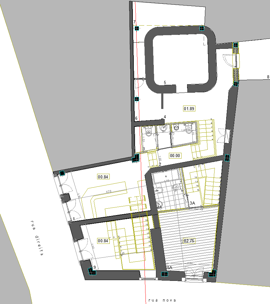
Imagem n.º 4 – Planta da Cave e Rés-do-Chão
![]() |
![]() |
Imagem n.º 5 – Planta do 1.º Andar e 2.º Andar
![]() |
![]() |
Imagem n.º 6 – Planta do Sótão e Cobertura
DESCRIÇÃO SUMÁRIA DOS TRABALHOS
A proposta de intervenção que se apresenta contempla demolições do interior do edifício de modo a adaptar o desenho do reforço estrutural e a nova formatação interior, com os padrões de segurança, de habitabilidade e o reforço estrutural necessário. As construções existentes no pátio a poente são demolidas com o objetivo de devolver melhores condições de salubridade dos espaços confinantes.
No espaço comercial existente no rés-do-chão, com entrada pela Rua Direita 80-82, a intervenção consiste na manutenção e restauro do espaço que inclui o forno da antiga padaria existente, com exceção para as instalações sanitárias que são inteiramente novas de modo responder às necessidades atuais de utilização.
Nos pavimentos manter-se-á a estrutura de madeira com reforços metálicos, revestido maioritariamente a soalho de madeira e material cerâmico nas zonas de contacto com a água.
Os tetos serão igualmente em régua de madeira pintado a branco, com exceção nas zonas de contacto com a água que utilizar-se-á o gesso cartonado hidrófugo.
Exteriormente proceder-se-á à reconstrução dos rebocos das paredes exteriores e execução de rebocos idênticos aos existentes, ou seja, “argamassa pobre” à base de cal para posterior pintura.
As cantarias deverão ser limpas ou reconstruídas e os vãos recuperados, ou quando não for possível a substituição por elementos de desenho e características idênticas às existentes. Nos vãos emparedados localizados na Rua Nova 44-46, serão colocados vãos novos em madeira, tal como os vãos reconstruídos no pátio poente.
As coberturas serão integralmente executadas em telha cerâmica grampeada, de canudo na cor vermelha, e executadas de forma a garantir a estanquicidade com aplicação de subtelha e isolamento térmico.
Por sua vez as mansardas serão revestidas a chapa de zinco, tipo camarinha de zinco, à cor antracite. No edifício de gaveto a chapa ondulada será substituída por outra de iguais características, termolacada à cor antracite.
A escolha dos sistemas construtivos e dos materiais será criteriosa, sendo valorizados os requisitos funcionais construtivos existentes.

Imagem n.º 7 – Corte
CONCURSO PARA A REALIZAÇÃO DA OBRA

EXECUÇÃO DOS TRABALHOS
A fiscalização e a coordenação da segurança da obra é efetuada pelo Departamento de Edifícios e Equipamentos Municipais.
))









