Reabilitação de 21 Habitações no Bairro da Fonte do Castanheiro

1. IDENTIFICAÇÃO
Reabilitação de 21 Habitações no Bairro da Fonte do Castanheiro
2. LOCALIZAÇÃO
Bairro da Fonte do Castanheiro, Freguesia de Santo António dos Olivais, Município de Coimbra
3. PROJECTO
Arquitetura: Divisão de Projetos de Edifícios e Equipamentos Municipais
Projetos de especialidades: Divisão de Projetos de Edifícios e Equipamentos Municipais, Divisão de Edifícios Habitacionais e PROJEDOMUS
4. MEMÓRIA DESCRITIVA
A intervenção prevê a reabilitação de 21 habitações do Bairro da Fonte do Castanheiro, construído nos anos 40/50 para realojar temporariamente os moradores da Alta de Coimbra desalojados para a construção da “Cidade Universitária” – 14 habitações do Tipo B1 e 7 habitações do Tipo C.
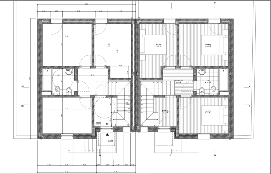
As habitações/edifícios a intervencionar do Tipo B1, contemplam a demolição da habitação existente e a construção de uma nova – 12 de tipologia T3 com 108,56m2 de área bruta de construção e 60,56m2 de área de implantação; e 2 de tipologia T4 com 122,10m2 de área bruta de construção e 61,05m2 de área de implantação.

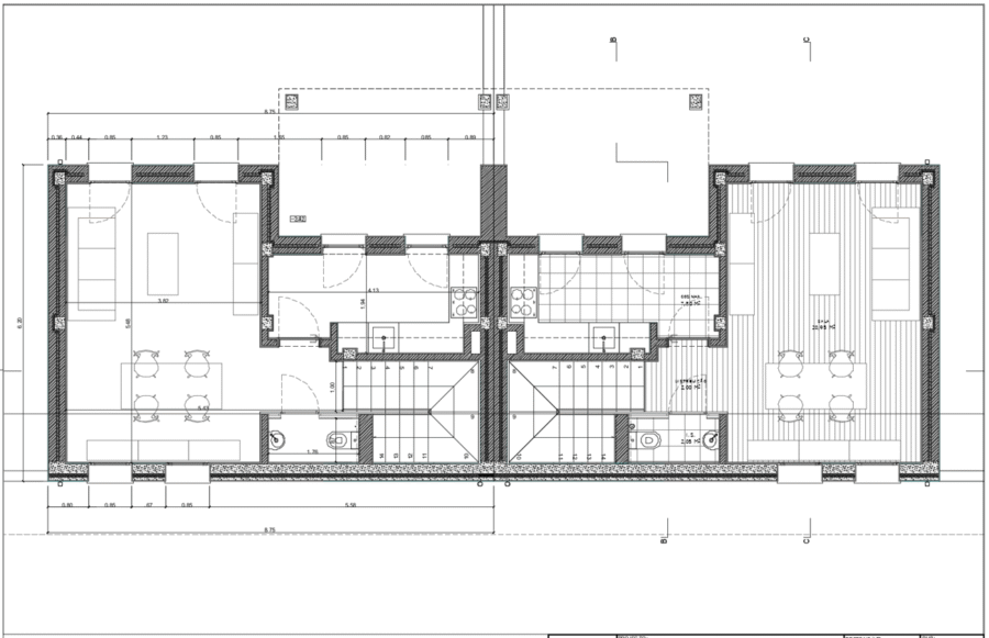
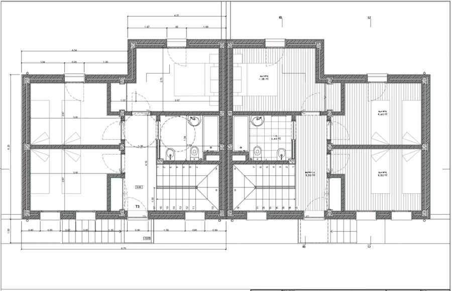
Tipo B1–T3

Tipo B1-T3 – Rés do Chão

Tipo B1-T3 – 1.º Andar

Tipo B1-T3 – Planta de implantação, alçado principal e perfil (lotes 55-56)

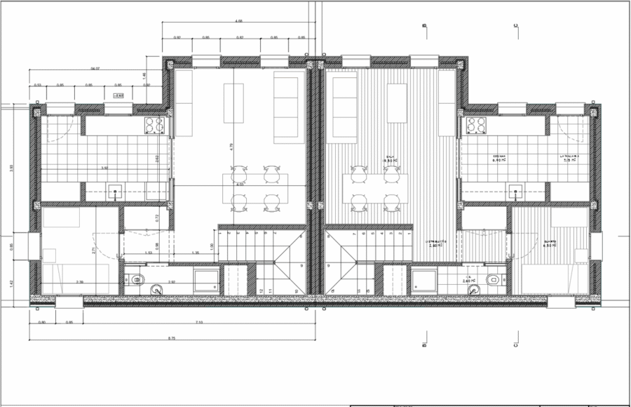
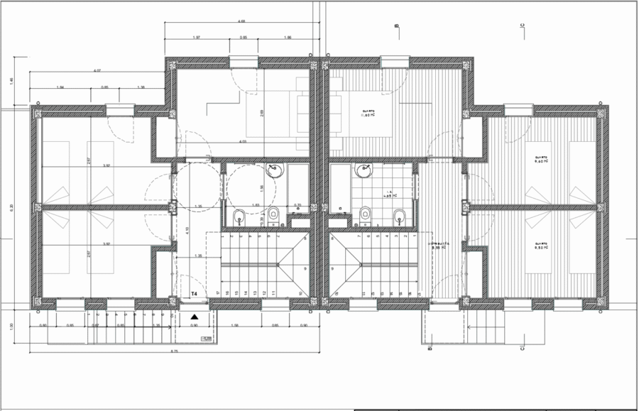
Tipo B1–T4

Tipo B1-T4 – Rés do Chão

Tipo B1-T4 – 1.º Andar

Tipo B1-T4 – Planta de implantação, alçado principal e perfil (lotes 83-84)
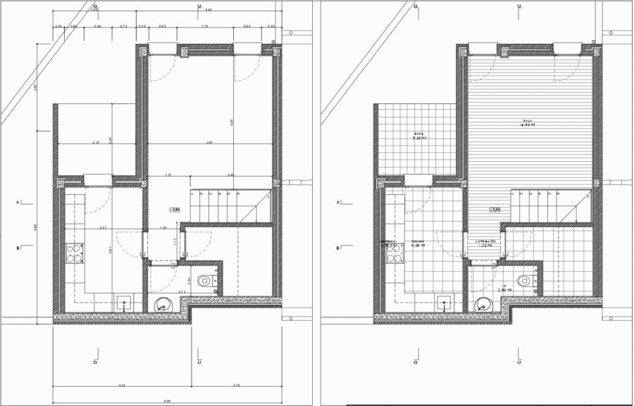
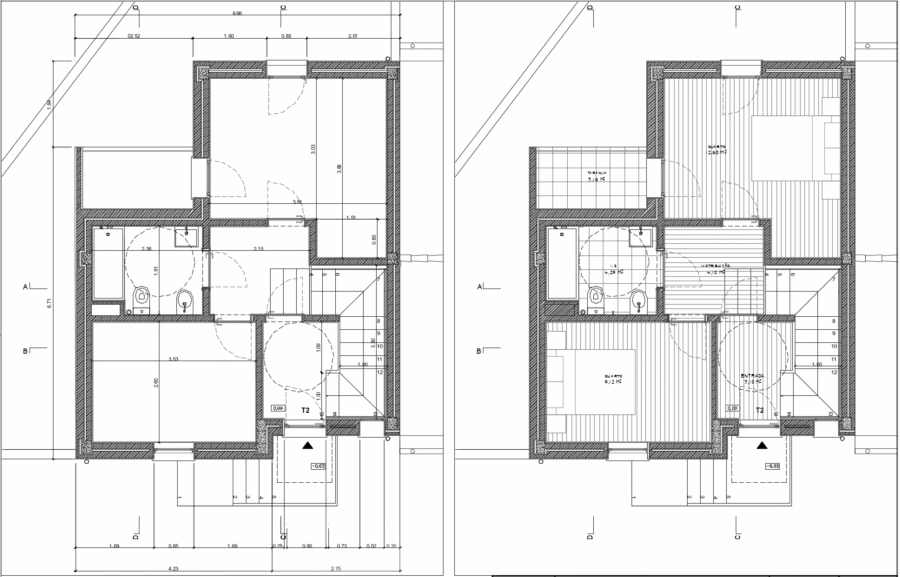
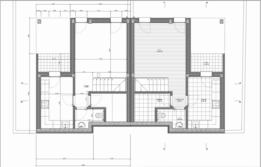
As habitações/edifícios a intervencionar do Tipo C, contemplam a demolição da habitação existente e a construção de uma nova: – 1 de tipologia T2 com 107,36m2 de área bruta de construção e 57,80m2 de área de implantação; – 6 de tipologia T3 com 106,55m2 de área bruta de construção e 58,30m2 de área de implantação.

Tipo C – Planta de localização

Tipo C-T2 – Cave

Tipo C-T2 – Rés do Chão

Tipo C-T3 – Rés do Chão

Tipo C-T3 – 1.º Andar

Tipo C T3 – Planta de implantação, alçado principal e perfil (lotes 79-80)
Apesar de se tratar de uma intervenção de raiz, o facto de se estar a intervir num conjunto construído, constituído na sua maioria por conjuntos de habitações geminadas, é determinante para o desenho final, que procura na manutenção de determinadas características morfológicas do edifício existente e de relação com o espaço público garantir a coerência formal, volumétrica e arquitetónica do conjunto, ainda que sem negar a sua contemporaneidade.
Deste modo as novas edificações implantam-se no lugar das existentes, mantendo as cotas de soleira existentes e respeitando o polígono de implantação das habitações originais, somente reajustado na profundidade da intervenção.
5. DESCRIÇÃO GERAL DOS TRABALHOS
O projeto foi concebido de forma a dotar as habitações das características físicas e técnicas necessárias para permitir a utilização e o consumo eficiente de energia, com especial relevo para a utilização de energia solar passiva.
Ao nível construtivo e dos acabamentos pretende-se obter um conjunto de soluções que garantam eficácia construtiva – sendo valorizados os requisitos funcionais construtivos para um bom comportamento térmico e acústico, durabilidade, resistência, estanquidade, fácil limpeza e conservação – e um apertado controlo de custos, optando-se por considerar sistemas construtivos e materiais “correntes” de forma a reduzir os custos da intervenção. São respeitadas as orientações técnicas e construtivas definidas no Regulamento do Loteamento.
A estrutura do edifício será em betão armado; a constituição das paredes exteriores será em pano duplo de alvenaria de tijolo furado, com a associação de corte térmico em poliestireno extrudido; a constituição das paredes interiores será em panos simples de alvenaria de tijolo furado ou bloco de betão com as espessuras de 7, 11 ou 15 cm; excetuam-se os panos onde por razões de geometria serão aplicadas espessuras alternativas; as coberturas serão inclinadas, de duas águas, revestida com telha Marselha e beirado em telha de aba e canudo, sendo sempre associadas a corte térmico em poliestireno extrudido; os vãos exteriores serão em PVC branco com vidro duplo e serão guarnecidos em pedra de ataíja nos peitoris e nas soleiras.
Exteriormente o edifício será revestido com reboco estanhado, pintado a tinta plástica, cor branca.
Os pátios e os logradouros terão pavimento em betonilha esquartelada ou lajetas de betão, mas serão revestidos na sua maioria com pavimentos permeáveis.
Os projetos de arranjo dos espaços exteriores constituem projetos complementares ao projeto de arquitetura da habitação e são apresentados de forma autónoma, dado serem elaborados em função dos lotes, caso a caso, uma vez que, como referido anteriormente, são muito diversas as situações de relação do edificado com o lote e deste com o espaço público – se nuns casos a habitação estabelece com o arruamento uma relação de nível, como no caso da maioria dos lotes que confrontam com a Rua da Fonte do Castanheiro, noutros a habitação implanta-se cerca de um piso acima da cota do arruamento.

Planta com arranjo dos espaços exteriores dos lotes
6. CONCURSO PARA A REALIZAÇÃO DA OBRA

7. FASE DE DESENVOLVIMENTO
A fiscalização e a coordenação da segurança da obra são efetuadas pelo Departamento de Edifícios e Equipamentos Municipais.
))