Programa Público de Habitação a Custos Acessíveis (CIM-RC/IHRU)” (PRR) – Rua Vale de Figueiras n.º 191 e 193 – Conceção-Construção para Reabilitação de 6 Fogos

IDENTIFICAÇÃO
“Programa Público de Habitação a Custos Acessíveis (CIM-RC/IHRU)” (PRR) – Rua Vale de Figueiras n.º 191 e 193 – Conceção-Construção para Reabilitação de 6 Fogos”

LOCALIZAÇÃO
Estrada Vale de Figueiras, União de Freguesias de Eiras e São Paulo de Frades, Município de Coimbra.
PROJETO
Estudo Prévio: Divisão de Projetos de Edifícios e Equipamentos Municipais
MEMÓRIA DESCRITIVA
A presente memória, diz respeito ao Projeto de Reabilitação do Imóvel de Habitação Coletiva Municipal, localizado na Estrada Vale de Figueiras, num total de quatro frações de tipologia T1 e quatro frações de garagens autónomas cobertas. O edifício, com uma linguagem com elementos característicos dos anos 50 apresenta visíveis deficiências generalizadas, nomeadamente no envelhecimento dos materiais de revestimento do exterior com destacamento pontuais dos rebocos exteriores, cobertura com ausência de isolamento térmico, caleiras e tubos de queda danificados, paredes interiores com indícios patológicos das más condições de salubridade, apresentando zonas com manchas e bolores tal como alguns elementos dissonantes nas fachadas laterais e posterior.

Imagem n.º 1 – Fotografias – Existente
Ao apresentar um particular estado de degradação e a falta de conforto térmico e acústico considerando os parâmetros atuais, a presente proposta de intervenção pretende solucionar as carências descritas sem que altere substancialmente a identidade original do edifício. O acesso às habitações pelo exterior, são um dos pontos que claramente transparece o desconforto de utilização, quer pela exposição às variações climáticas quer pela irregularidade e altura de espelhos com medidas não regulamentares. Neste sentido, a proposta de reabilitação tenta através da adição de volumes laterais, uniformizar os alinhamentos com os elementos construtivos a norte e a sul, encerrando os acessos verticais às habitações. Esta solução, permitiu a relocaliza da cozinha libertando o anterior espaço para a utilização de um quarto, o que permitiu a transformação da tipologia inicial T1 para T3. Ao nível do rés-do-chão, procedeu-se à adaptação dos espaços de garagem para duas frações de tipologia T1 com acessos autónomos diretamente ao espaço público.
Imagem n.º 2 – Alçados e Perfis – Existente

Imagem n.º 3 – Levantamento Topográfico
Com o objetivo de uniformizar o conjunto das propostas de projeto para a zona, promovidos pela Câmara Municipal de Coimbra, e dinamizar uma frente de rua eclética e bastante descaracterizada, a proposta que se apresenta, pretende através da sua reabilitação integral conjuntamente com o pequeno acréscimo de volumetria, definir a fronteira entre as novas propostas e o tecido urbano existente.

Imagem n.º 4 – Alçados e Perfis – Sobreposições
Neste sentido, os novos elementos que constituem a ampliação, formalmente construídos com betão aparente e tijolo maciço de barro vermelho, encerram os acessos verticais, agora relocalizados no limite poente da edificação. Este gesto interventivo, permitiu criar um edifício mais hermético, com novas relações com os acessos às frações, mas preservando a identidade do edifício original.
Assim, com o encerramento dos acessos verticais, promoveu a uma nova configuração interior das habitações, nomeadamente com a relocalização da cozinha junto à nova entrada das frações, que traduz no acréscimo de um quarto adicional.
Neste contexto, é transformado um edifício com quatro frações de tipologia T1, composto por entrada, sala de jantar, sala de estar, varanda, distribuição, cozinha, quarto, instalação sanitária e pátio (ao nível do 1º andar), para um edifício com quatro frações de tipologia T3, composto por entrada, cozinha, sala, varanda, distribuição, três quartos, instalações sanitárias e pátio de maiores dimensões (ao nível do 1º andar).
Ao nível do rés-do-chão, procedeu-se à adaptação do espaço destinado a garagens, para duas frações de tipologia T1, compostos por entrada, sala, cozinha, varanda, quarto, instalação sanitária e pátio.

Imagem n.º 5 – Quadro Resumo
DESCRIÇÃO SUMÁRIA DOS TRABALHOS
O projeto foi concebido de forma a dotar o edifício com características ao nível construtivo e dos acabamentos, com um conjunto de soluções que garantam eficácia construtiva – sendo valorizados os requisitos funcionais construtivos para um bom comportamento térmico e acústico, durabilidade, resistência, estanquidade, fácil limpeza e conservação – e um apertado controlo de custos, optando-se por considerar sistemas construtivos e materiais “correntes” de forma a reduzir os custos da intervenção.

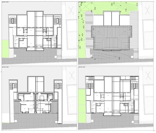
Imagem n.º 6 – Plantas – Proposta
A estrutura do edifício existente, é constituído por paredes de alvenaria de pedra e tijolo, reforçadas com estrutura de betão armado. Termicamente será reforçado com isolamento térmico pelo exterior através do sistema ETICs, com exceção nas zonas a ampliar que serão pelo interior das paredes. A estrutura das zonas ampliadas, será integralmente a betão armado, com acabamento aparente e complementado com tijolo maciço de barro vermelho. O interior no edifício existente, os revestimentos das paredes serão todos substituídos por novos em estuque, enquanto que nas zonas a ampliar são em gesso cartonado do tipo Knauf ou equivalente. A cobertura do edifício existente, será revestida a telha cerâmica associada a corte térmico em poliestireno extrudido e subtelha. Na cobertura das ampliações, será revestida a camarinha de zinco à cor natural, sendo sempre associadas a corte térmico em poliestireno extrudido. Os vãos exteriores serão em alumínio anodizado cinza forja.

Imagem n.º 7 – Mapa de Revestimentos e Acabamentos Interiores
Remoção total dos rebocos das paredes exteriores das fachadas do edifício a recuperar, execução de rebocos de argamassa de cimento para aplicação do sistema ETICS com barramento à base de cal para posterior pintura na cor branca. Nas zonas a ampliar, as paredes serão integralmente a betão armado aparente e/ou tijolo maciço de barro vermelho.

Imagem n.º 8 – Alçados e Perfis – Proposta
Para a cobertura do edifício existente, o revestimento será a telha cerâmica associada ao corte térmico em poliestireno extrudido e reforçada com subtelha. Na cobertura dos novos volumes, serão revestidas a camarinha de zinco à cor natural, sendo sempre associadas a corte térmico em poliestireno extrudido. A aplicação de caleiras e tubos de queda, integrados na cobertura, devem ser executados em zinco à cor natural.
Nos pavimentos exteriores, no pátio, aplicar-se-á a tira romana cerâmica de barro vermelho enquanto o acesso às garagens o pavimento será de cubo de granito.
No edifício a recuperar, é proposto a reabilitação total das paredes divisórias, com a substituição total dos rebocos e estuques. Os tetos serão igualmente reabilitados na totalidade, com a substituição total dos rebocos e estuques e complementados com gesso cartonado e lã mineral de alta densidade para melhoramento acústico.
Os vãos exteriores, na sua generalidade, serão em alumínio anodizado na cor cinza forja, com vidro duplo com correção térmica, enquanto que os vãos interiores serão em madeira para pintar à cor branca, com puxadores do tipo L “JNF” (ref. IN.00.050), com exceção da porta de correr da zona de distribuição, em contraplacado de bétula, e porta da cozinha de ferro e vidro.
CONCURSO PARA A REALIZAÇÃO DA OBRA

EXECUÇÃO DOS TRABALHOS
A fiscalização e a coordenação da segurança da obra é efetuada pelo Departamento de Edifícios e Equipamentos Municipais.
))