Empreitada “Centro Escolar Ribeira de Frades – Obras de Manutenção”
IDENTIFICAÇÃO
Empreitada “Centro Escolar Ribeira de Frades – Obras de Manutenção”
LOCALIZAÇÃO
Rua Pedro Rodrigues dos Santos, União Freguesias de São Martinho do Bispo e Ribeira de Frades, Coimbra
DESCRIÇÃO GERAL ADMINISTRATIVA
Edificado referente à escola de ensino básico 1 de Ribeira de Frades
PROJETO
Projeto de Arquitetura: Divisão de Edifícios e Equipamentos Escolares
DESCRIÇÃO GERAL DO EDIFÍCIO

MEMÓRIA DESCRITIVA
A Escola Básica n. º1 Ribeira de Frades, localiza-se na Rua Pedro Rodrigues dos Santos, União Freguesias de São Martinho do Bispo e Ribeira de Frades, do Município de Coimbra.
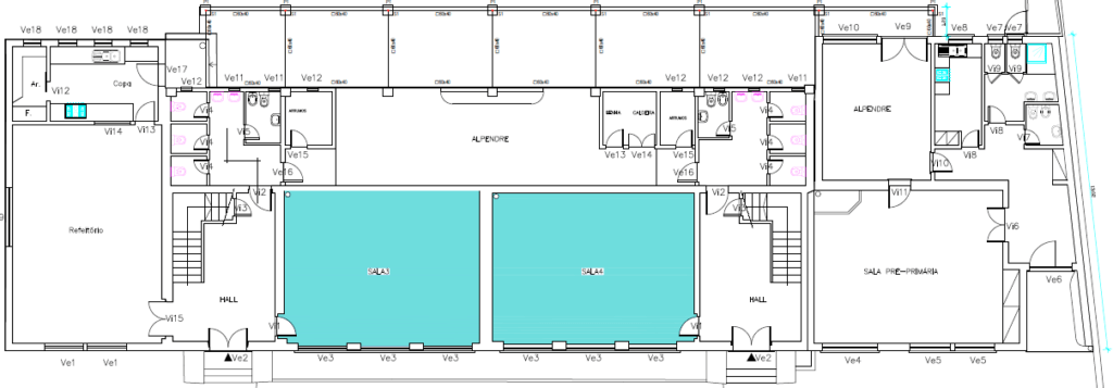
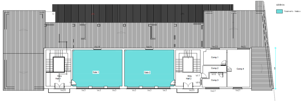
É uma escola do tipo Plano Centenário, constituída por rés-do-chão e 1º andar, que incluí quatro salas de aulas do ensino básico com 84 alunos. Anexo ao edifício da Escola EB1 funciona uma sala do pré-escolar com 25 crianças, instalações sanitárias, refeitório, copa e arrumos.
Tem uma ampla área exterior, que contém um campo de jogos, uma zona coberta constituída por telheiros e um espaço de jogo e recreio onde está inserido um parque infantil
No passado foi alvo de uma intervenção de beneficiação exterior, que teve como principal objetivo, efetuar melhoramentos nas fachadas, muros e limpeza da cobertura dos edifícios existentes, que embora se encontrem em razoável estado de conservação, apresentavam alguma deterioração, consequência natural do envelhecimento e uso/desgaste associado a este tipo de equipamentos.
Detetaram-se nas vistorias realizadas as seguintes necessidades de intervenção:
– Falta de ventilação da cobertura;
– Reabilitação da Cobertura;
– Verificam-se assentamentos pontuais da cobertura;

– Deficiente encaixe de telhas

– Deficiente encaixe de telhas
![]() |
![]() |
Como consequência das anomalias identificadas, registam-se no interior do edifício vários locais com infiltrações sendo de assinalar as infiltrações provocadas pelas anomalias na cobertura, nas salas de aula do 1º andar, com manchas bolores e escorrimentos de água;
![]() |
![]() |
Por questões de segurança e porque a rede existente já não oferece garantias em termos de vedação por estar muito deteriorada propõe-se a sua substituição por rede em painéis de rede eletrossoldada.
Genericamente a intervenção vai constar dos seguintes trabalhos:
• Remoção de telha e ripa existente na cobertura;
• Remoção de rede elástica existente no perímetro da escola e respetivos portões;
• Remoção e posterior reposição de painéis solares existentes na cobertura;
• Colocação de isolamento térmico (lã de rocha mineral) na laje de esteira;
• Execução de cobertura em painéis OSB, subtelha asfáltica, ripa em PVC e telha lusa;
• Execução de remates em rufos metálicos na cobertura em encontros com paramento vertical, chaminés e bordo perimetral;
• Reabilitação de pavimentos interiores de salas de aulas da EB1;
• Pintura interior em paredes e tetos;
• Aplicação de rede na periferia da escola em painéis de malha eletrossoldada;
• Aplicação de portões exteriores novos.



CONCURSO PÚBLICO PARA A REALIZAÇÃO DA OBRA

EXECUÇÃO DOS TRABALHOS
A fiscalização da obra será assegurada pela Divisão de Edifícios e Equipamentos Escolares com a assistência técnica da Divisão de Projetos e Edifícios Municipais.
A coordenação de segurança em obra será assegurada pelo Departamento de Edifícios e Equipamentos Municipais.
))



